J’ai eu l’opportunité d’effectuer un stage de six mois au sein du bureau de Rodrigo Martins, durant mon cinquième semestre d’études, où j’ai été accompagné et formé par l’ensemble de l’équipe. Cette expérience m’a permis de collaborer étroitement avec Rodrigo Martins, Nadège Manuard et Cosette Carrera, avec lesquels j’ai eu beaucoup de plaisir à échanger et à travailler au quotidien.
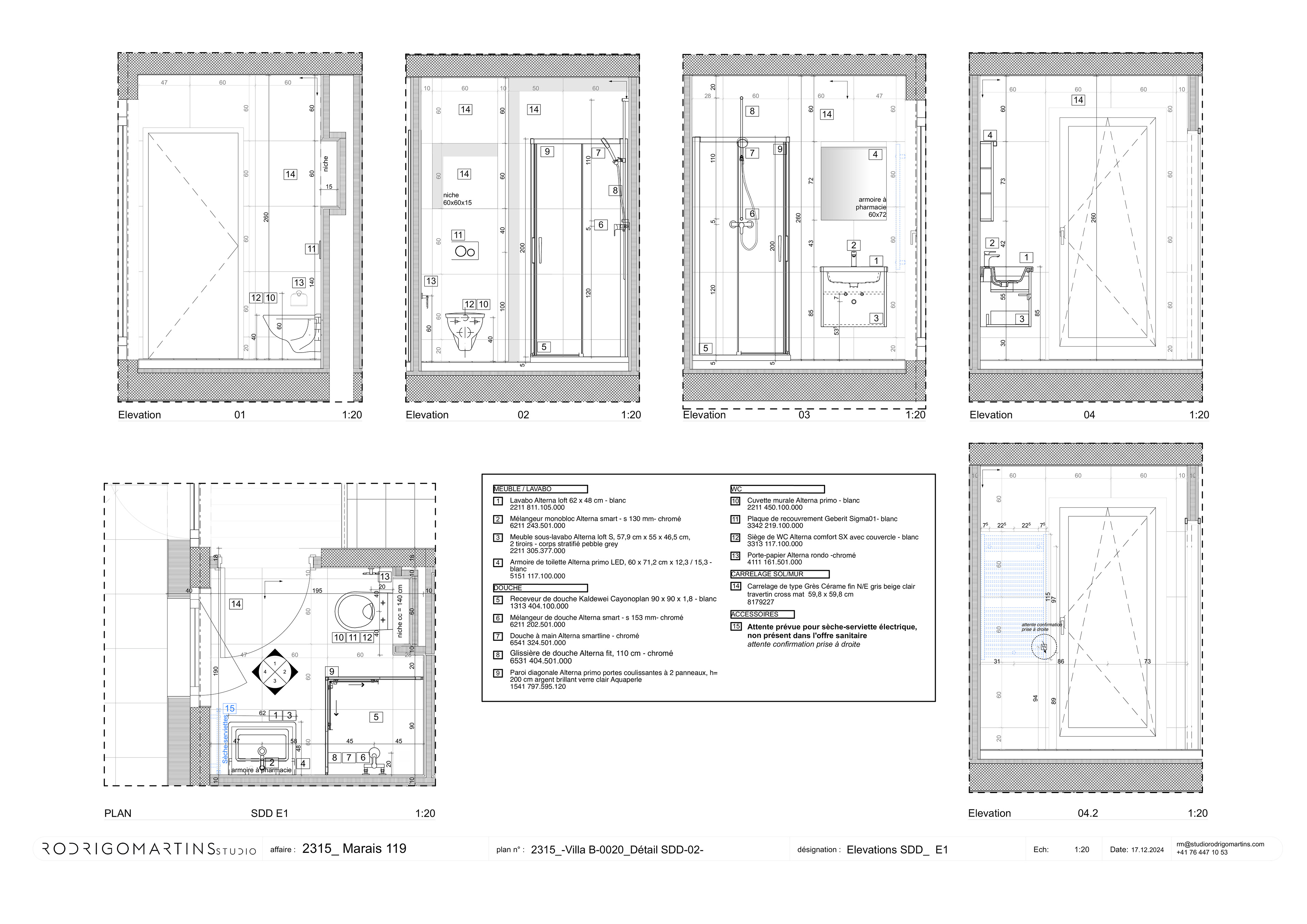
Au cours de ce stage, j’ai approfondi mes compétences en dessin technique, notamment à travers l’élaboration de plans d’exécution, en particulier pour des salles de bains de villas, qui ont constitué une part importante de mon travail. J’ai également participé au relevé complet d’une villa à Vésenaz et au développement de ses aménagements, notamment celui du dressing, ainsi qu’à la participation active au chantier de réaménagement des bureaux, me permettant de confronter le projet aux réalités de la mise en œuvre.
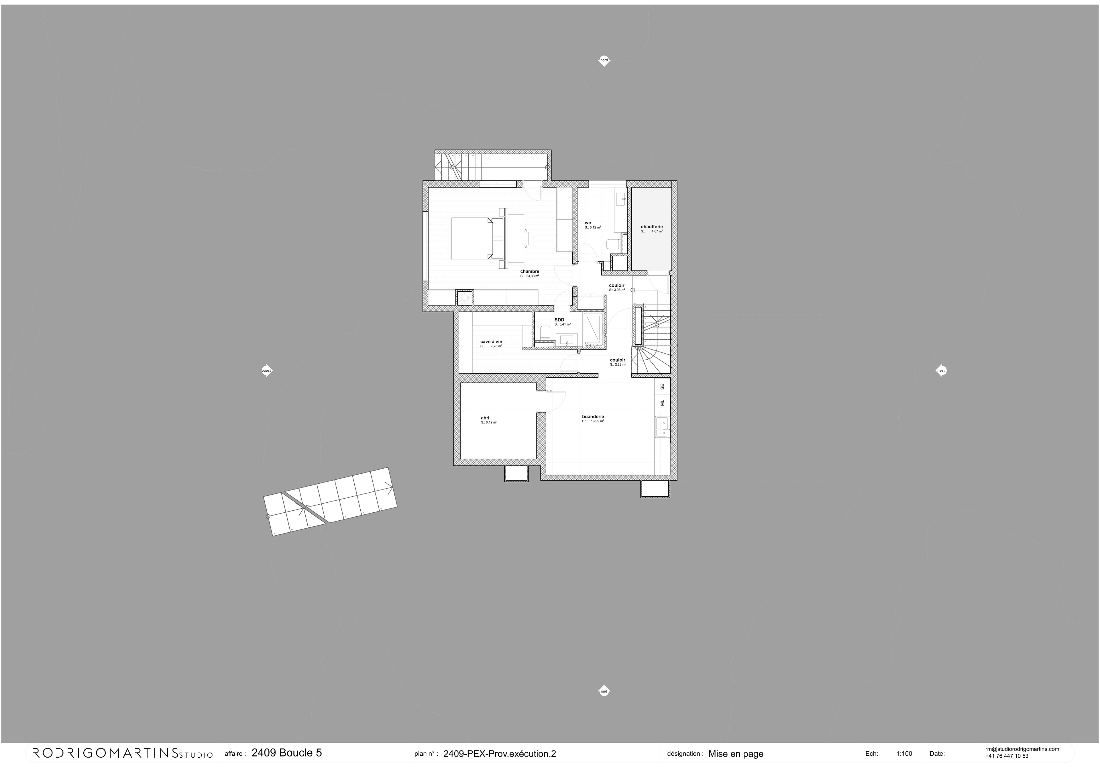
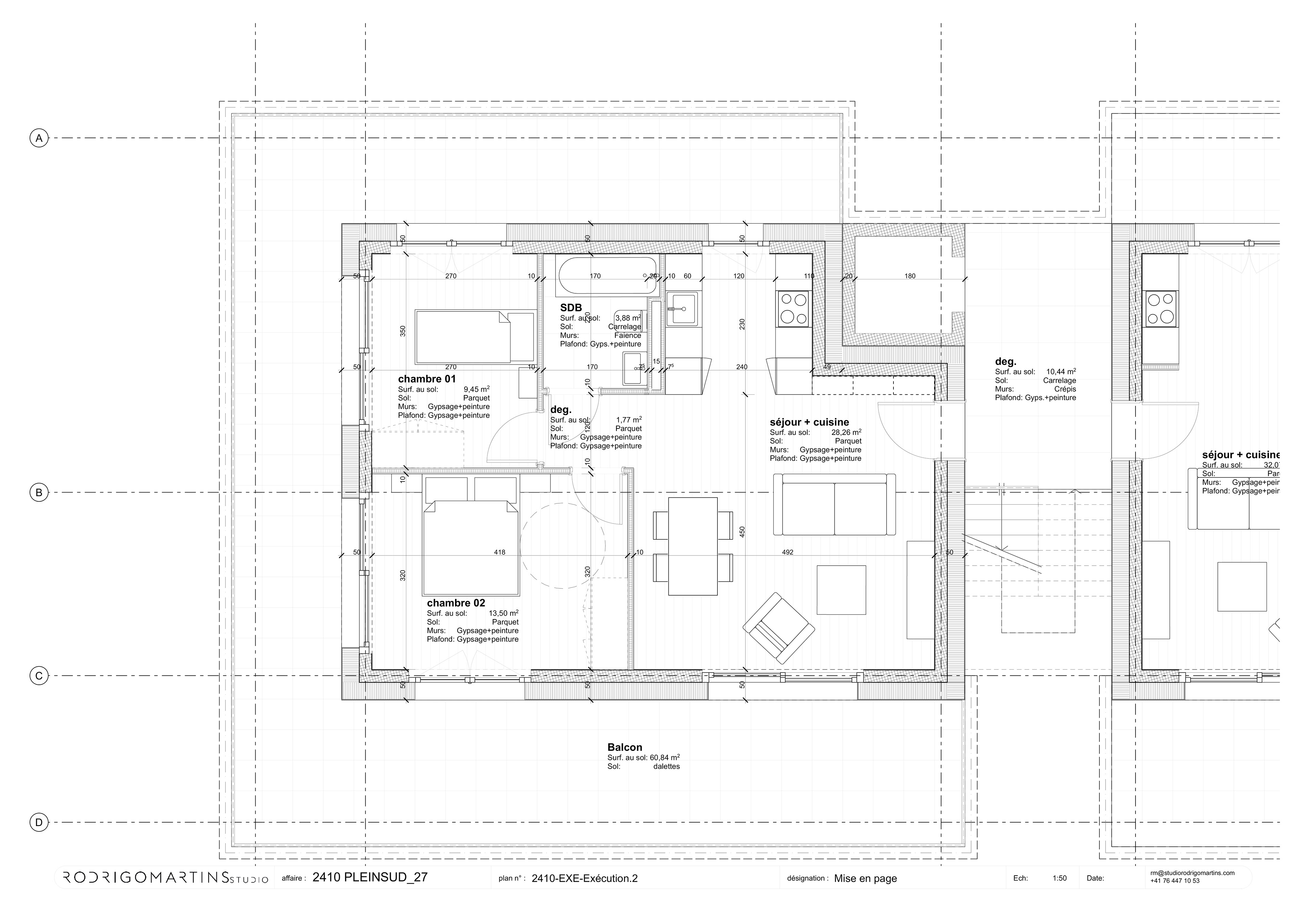
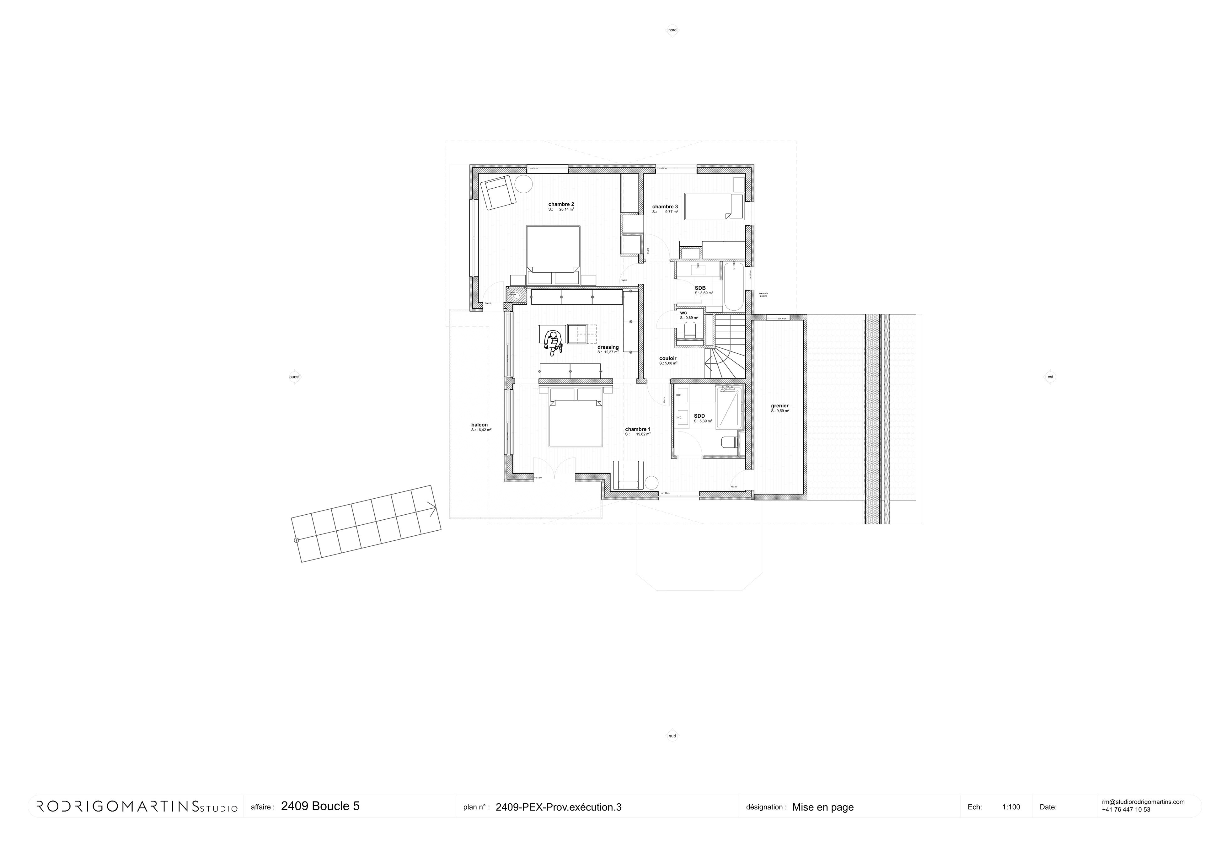
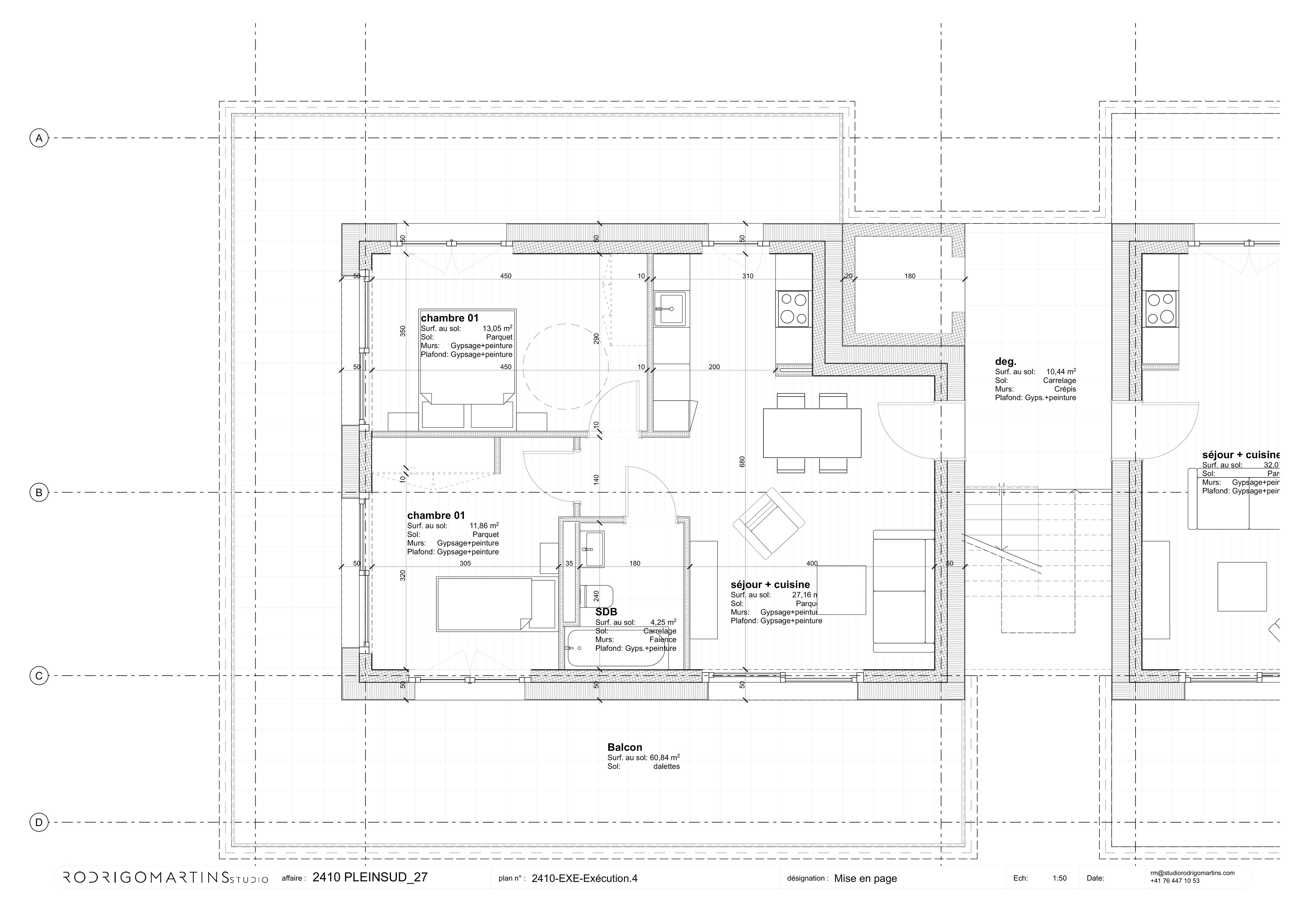
Plans d'executions pour plusieurs villas
relevé & aménagement ainsi que plusieurs propositions d'aménagement de dressing
proposition d'aménagement pour l'appartement A de l'attique d'une villa
Back to Top